Fortín San Jerónimo- Descripción y Planos

 

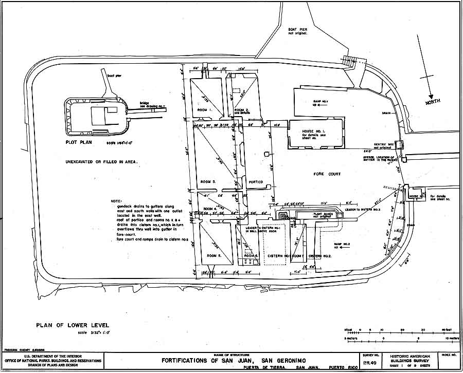
El fortín San Jerónimo está construido sobre un peñasco de roca arenisca que sobresale sobre el nivel del mar. Las paredes inferiores y exteriores se construyeron utilizando este mismo material, piedra arenisca o eolianita, cortada en bloques de aproximadamente 16 "x 18" x 32 " y colocados en hileras. La estructura tiene forma rectangular con las esquinas redondeadas. Un corto puente de arcos la conecta con la playa.

Hay dos niveles principales. El de arriba, destinado a la plataforma para emplazar cañones, con aspilleras y una garita de vigilancia, está conectado por dos rampas con la plazoleta a la entrada. Todas las rampas y bóvedas con excepción del cuarto número 7 y la cisterna número 2 están en el nivel de la explanada. En total hay 7 cuartos y dos casetas.

Los muros y las paredes exteriores, las más masivas, tienen un núcleo rellenado de escombros y piedra. Los muros de los cuarteles y paredes interiores son de mampostería. Las bóvedas y los arcos están revestidos con ladrillos de barro cocido. Para la techumbre se empleó vigas de madera de ausubo y ladrillos. El piso está pavimentado con una argamasa compuesta de cal, arena, agregado de fragmentos de ladrillos de terracota y agua. Todas las paredes estaban recubiertas originalmente con un estuco de cal.

El emplazamiento está equipado con dos cocinas: una en el cuarto número 2 y otra en el número 6. La última aún conserva la chimenea. En el cuarto num. 2 quedan rastros de un bonete sobre el fogón de la cocina. La instalación tiene dos cisternas. Una contenía agua potable. Se llenaba con las aguas recolectadas de los techos sobre los cuartos 3, 4, 5 y el pórtico, y se vaciaba por un pozo en la plazoleta. La otra cisterna, que se surte de las escorrentías del patio y las rampas, contenía agua utilizada para para el lavado y bañarse. La caseta num. 5 servía como letrina. La marea alta se encargaba de arrastrar los desechos.